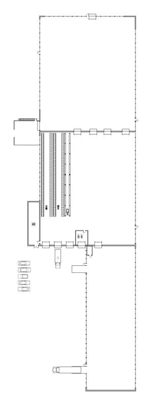
Große Produktions- und Lagerhalle (150m lang, 7 elektrische Tore) mit Freiflächen

23. Februar 2024

Liegenschaft in 72351 Geislingen im Ortsteil Binsdorf im Blütenweg 9 (Flurstück 1824/1, 1819) bestehend aus:

10.033m² Grundstück
ca. 5.300m² Halle
ca. 200m² Sozialräume (WCs, Umkleiden, Aufenthaltsraum, Technikraum)
ca. 2.700m² asphaltierte/gepflasterte Freilfläche

Bei Bedarf können Sie Büroflächen dazu mieten

Lage:
Der gewerbepark binsdorf liegt im südlichen Teil von Baden-Württemberg im Zollernalbkreis bei Balingen. Das moderne und gepflegte Industrieanwesen liegt direkt am Ortseingang von Binsdorf. 


Entfernungen:
- 15 km zur A81 (Stuttgart - Singen) ohne Ortsdurchfahrt
- 11 km zur B27 (Stuttgart - Rottweil)
- 5 km zur B463 (A81 Empfingen - Sigmaringen)
- 70 km bis zur Landeshauptstadt Stuttgart

Verfügbar ab 1.4.2025

zurück zur Übersicht